Projekt kulturer.be
Landeskunde > Städte > Freiburg > Münster

 Für den Zugang zum Münster gibt es drei Wege: Der erste
              beginnt, von der Herrenstraße kommend, am Chorhaupt, dem
              jüngsten Bauteil des Münsters. Es zeigt mit seinen regelmäßig
              und filigran gestalteten Strebepfeilern die ausgereiftesten Formen
    der Gotik.
Für den Zugang zum Münster gibt es drei Wege: Der erste
              beginnt, von der Herrenstraße kommend, am Chorhaupt, dem
              jüngsten Bauteil des Münsters. Es zeigt mit seinen regelmäßig
              und filigran gestalteten Strebepfeilern die ausgereiftesten Formen
    der Gotik.
Als Zugang zum Chor dienten an der Nord- und der Südseite zwei Chorseitenportale, das Schöpfungsportal und das Marienportal.
 Die beiden Querhäuser sind der älteste Teil des Münsterbaus,
              noch vollständig in romanischen Formen errichtet. Dem südlichen
              Querhaus (Bild) ist eine Renaissance-Vorhalle vorgelegt. Auch die
              Hahnentürme im Winkel zwischen Querhaus und Chor gehören
              der romanischen Bauperiode an. Auf das Querhaus stößt
              man, wenn man von der Schusterstraße her die schmale Buttergasse
    nimmt.
Die beiden Querhäuser sind der älteste Teil des Münsterbaus,
              noch vollständig in romanischen Formen errichtet. Dem südlichen
              Querhaus (Bild) ist eine Renaissance-Vorhalle vorgelegt. Auch die
              Hahnentürme im Winkel zwischen Querhaus und Chor gehören
              der romanischen Bauperiode an. Auf das Querhaus stößt
              man, wenn man von der Schusterstraße her die schmale Buttergasse
    nimmt. 
 Die Langhausseite überrascht durch einen reichen Schmuck
      an Wasserspeiern.
Die Langhausseite überrascht durch einen reichen Schmuck
      an Wasserspeiern. 
    
 Der Besucher, der von der Kaiser-Joseph-Straße
                (Fußgängerzone) und die Münstergasse kommt, steht
                vor der mächtigen Turmfassade. Der Turm steht deutlich vor
                das Langhaus gerückt, eine Vorhalle in seinem Unterbau öffnet
                sich mit reichem Figurenschmuck ein einziges Hauptportal in die
    Kirche.
Der Besucher, der von der Kaiser-Joseph-Straße
                (Fußgängerzone) und die Münstergasse kommt, steht
                vor der mächtigen Turmfassade. Der Turm steht deutlich vor
                das Langhaus gerückt, eine Vorhalle in seinem Unterbau öffnet
                sich mit reichem Figurenschmuck ein einziges Hauptportal in die
    Kirche.
Bild: © Edition March, J. Gass, March-Neuershausen
  
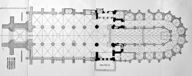
 Der Grundriss des Münsters verdeutlicht die erhaltenen Reste des romanischen Gründungsbaus (schwarz), zeigt links daran anschließend das  gotische Langhaus mit dem davor gestellten Turm sowie den im Osten (rechts) erneuerten und wesentlich über die ursprünglichen Maße des romanischen Chors hinaus gehenden spätgotischen Umgangschor.
Der Grundriss des Münsters verdeutlicht die erhaltenen Reste des romanischen Gründungsbaus (schwarz), zeigt links daran anschließend das  gotische Langhaus mit dem davor gestellten Turm sowie den im Osten (rechts) erneuerten und wesentlich über die ursprünglichen Maße des romanischen Chors hinaus gehenden spätgotischen Umgangschor.
| im Detail: | |
| siehe auch: | |
| weiter: | 
Startseite | Service | Aktuelles | zur ZUM | © Landeskunde online/ kulturer.be 2017